maîtrise d’ouvrage :
COALLIA

• SHON : 2570 m2

• coût de la construction H.T. :

  5 000 000 euros (2012)

• architecture : Bruno Pantz

  assisté d’Eléonore Gurnade

  et Camille Bonfils

• BET TCE : ARCOBA

étude 2012
projet non retenu

L’esquisse présentée confirme l’étude réalisée par l’agence Guérin et Pedroza dans la fiche de lot jointe au dossier de consultation tant en terme de surface que de nombre de logements et d’estimation prévisionnelle

Le projet

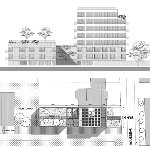
Il est composé de deux bâtiments qui assurent l’articulation entre les bâtiments relativement hauts sur la rue Jean Jacques Rousseau et les bâtiments conservés plus bas donnant sur le stade de foot.

Le vide entre les deux bâtiments accompagne en douceur la transition entre les deux parties du projet.

Le rez-de-chaussée est surélevé de 0,48m par rapport au terrain naturel en conformité avec le PPRI. Il accueille la plupart des locaux communs ainsi que les niveaux bas de deux duplex donnant sur des jardinets privatifs entre les deux bâtiments.

Le hall est implanté à l’angle des deux voies, la rampe de parking (en option) étant implantée en limite parcellaire avec l’immeuble voisin rue Jean Jacques Rousseau. Le parc de stationnement de 26 places occupe la totalité de la parcelle. Sa capacité pourra être diminuée suivant les demandes de la maîtrise d’ouvrage.

L’escalier desservant le parking donne sur le hall d’accueil. L’escalier supplémentaire en bout de parking est un escalier de secours nécessité par les dimensions du parc.

 

Les étages sont conçus dans un souci de rationalité et de rendement optimum. Les cellules sont conçues afin de diminuer au maximum les surfaces servantes. Les appartements exposés au sud-est bénéficient d’un petit jardin d’hiver qui permettra de diminuer sensiblement la consommation de chauffage en hiver tout en confèrent une valeur ajoutée à l’utilisation de ces petits logements. Des stores extérieurs protègeront des apports solaires aux saisons chaudes. Ces jardins d’hiver assureront également une isolation acoustique renforcée par rapport aux éventuelles manifestations bruyantes provenant du stade Lénine. Les appartements situés sur les façades rue Jean-Jacques Rousseau, sur le « pocket garden » et sur l’espace vert séparant les deux immeubles seront prolongés par des balcons.

Les circulations horizontales sont largement dimensionnées et éclairées naturellement à chacune de leurs extrémités. Le toit terrasse du bâtiment B à R+3 pourra être utilisé en séchoir collectif ou en jardin partagé, potager ou d’agrément. Dans ce cas, une citerne de récupération des eaux de pluie permettra un arrosage gratuit de ces espaces.

Les prestations extérieures et intérieures mises en œuvre seront choisies pour assurer une grande pérennité de la construction et un minimum d’entretien.

Les façades seront réalisées en mur de briques afin de s’harmoniser avec les bâtiments voisins mais également avec les immeubles anciens de la rue Jean-Jacques Rousseau. Les menuiseries extérieures seront réalisées en aluminium ou bois-aluminium. Les espaces extérieurs seront traités avec soin.

 

Dispositions en matière de développement durable et de haute qualité environnementale

La compacité des deux bâtiments sans décrochement  permet de garantir une efficacité énergétique optimale qui sera renforcée par une isolation thermique par l’extérieur en double mur. La terrasse du bâtiment à R+7 sera mise à profit pour disposer de 70m2 de panneaux solaires destinés à la production d’eau chaude sanitaire. La chaufferie collective sera disposée au dernier étage du R+7.